Špecializujeme sa malosériovú výrobu a predaj systémových stavebníc rodinných domov a tovarov súvisiacich s ich kompletizáciou. Stavebnice dodávame firmám aj jednotlivcom ako polotovar na vlastnú montáž alebo s montážou od nás.
V spolupráci s architektom sme sa pri našich nových domoch pri návrhu zamerali na to, čo od nás klienti požadovali najčastejšie. Tým bola rýchlosť výstavby a čo možno najnižšia obstarávacia cena plus dlhoročná životnosť. Ďalej nízke prevádzkové náklady a jednoduchá údržba aj po rokoch užívania, aby to zvládol každý. Najčastejšie slovné spojenie našich klientov bolo:
"ako byt, len na pozemku"
Na základe týchto požiadaviek sme navrhli niekoľko domov typu bungalov. Jednoduché vo svojej konštrukcii - pre možnosť sériovej výroby a zníženie výrobnej ceny. Dom, jeho konštrukcia, tvar a prevedenie sú navrhnuté a realizované podľa nábytku nevyhnutného pre trvalé obývanie. Všetko je podriadené riešeniam, ktoré slúžia svojmu majiteľovi. Vo variante s tromi alebo štyrmi izbami s možnosťou zrkadlového otáčania dispozície pre správne osadenie domu podľa svetových strán.
Stavebnice sú dostupné vo výmerách 50m2, 74m2 a 110/135m2.
50m2

Najmenšia a najlacnejšia stavebnica v našej ponuke je vo výmere 50m2. Podľa nového stavebného zákona je možné ju osadiť na Váš pozemok bez nutnosti zdĺhavého stavebného povolenia (po splnení legislatívnych podmienok).
Predstavuje alternatívu k mobilným domom, kontajnerovým stavbám alebo "tiny house".
Za porovnateľnú cenu dostanete nízkoenergetický domček s viacgeneračnou životnosťou, ktorý ráta s tromi izbami, osadením vstavaných skríň, jedálenského stola, štyroch stoličiek, 45 cm umývačky riadu, so samostatnou 60cm práčkou aj so 60cm sušičkou. Ráta s plnohodnotnou 60cm varnou platňou, rúrou, digestorom aj chladničkou. Vďaka dodatočnej PIR izolácii je vhodný na celoročné bývanie bez kompromisov. Vzhľadom na svoju veľkosť ho odporúčame pre rodiny s jedným, maximálne dvoma deťmi. Vhodný aj ako dom pre dôchodcov alebo luxusný rekreačný/záhradný domček. Prípadne ako dom na prenájom s rýchlou návratnosťou. Vhodný aj do strmších svahov, na plávajúcu základovú dosku alebo na pätky. Jeho jedinou nevýhodou je, že kúpeľňa a WC nie sú samostatne oddelené.
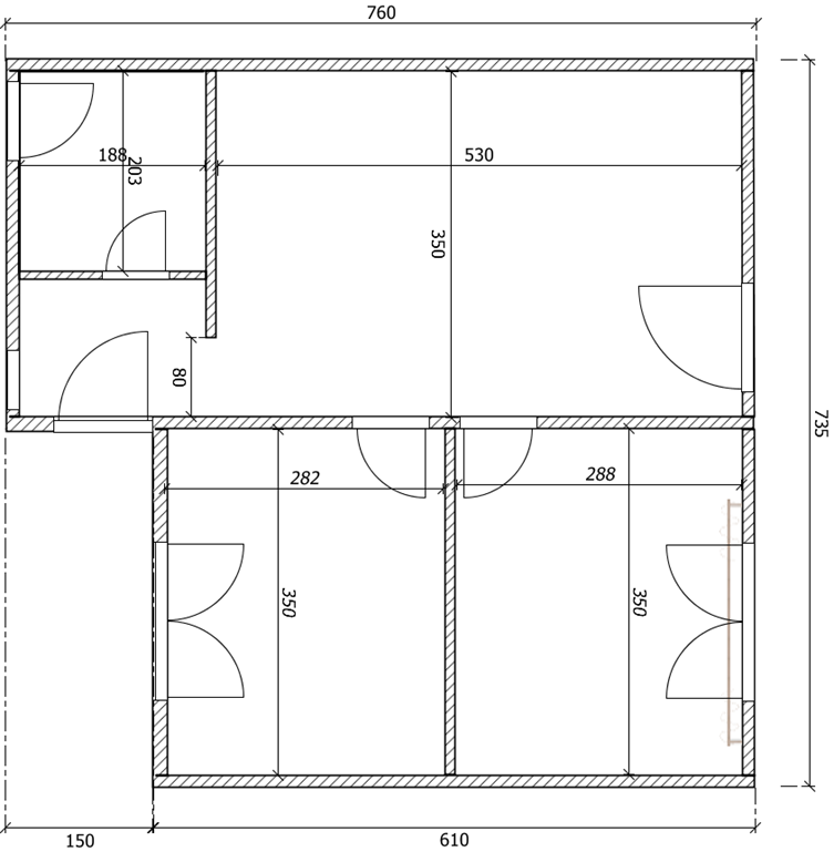
74m2

Stavebnica rodinného domu vo výmere 74m2 je rovnako v trojizbovom prevedení. Na legalizáciu tejto stavby už budete potrebovať stavebné povolenie a kolaudačné rozhodnutie.
Tento dom je zväčšenou variáciou našej najmenšej stavebnice. Vďaka väčším rozmerom má už kúpeľňu a WC oddelené. Ráta s väčšou potravinovou skriňou a chladničkou. Do kuchynskej linky vojde zabudovaná mikrovlnná rúra a umývačka riadu. Obe v šírke 60cm. Väčší kuchynský drez, samostatná práčka a sušička sú samozrejmosťou. Dom má väčšie dvojkrídlové dvere s výstupom na terasu. Do obývačkovej časti sa vmestí rohová sedacia súprava. Má o 33% silnejšiu konštrukciu aj izoláciu pre ešte nižšie náklady. Tento dom je vhodný pre štvorčlennú rodinu. Je veľmi obľúbený pre rýchlosť výstavby. Ak sa rodina rozrastie alebo to súčasná finančná situácia práve nedovoľuje, je možné časom k nemu prikúpiť systémovú prístavbu tretej spálne o výmere ďalších 16m2. Výmera domu sa tak zväčší až na 90m4.
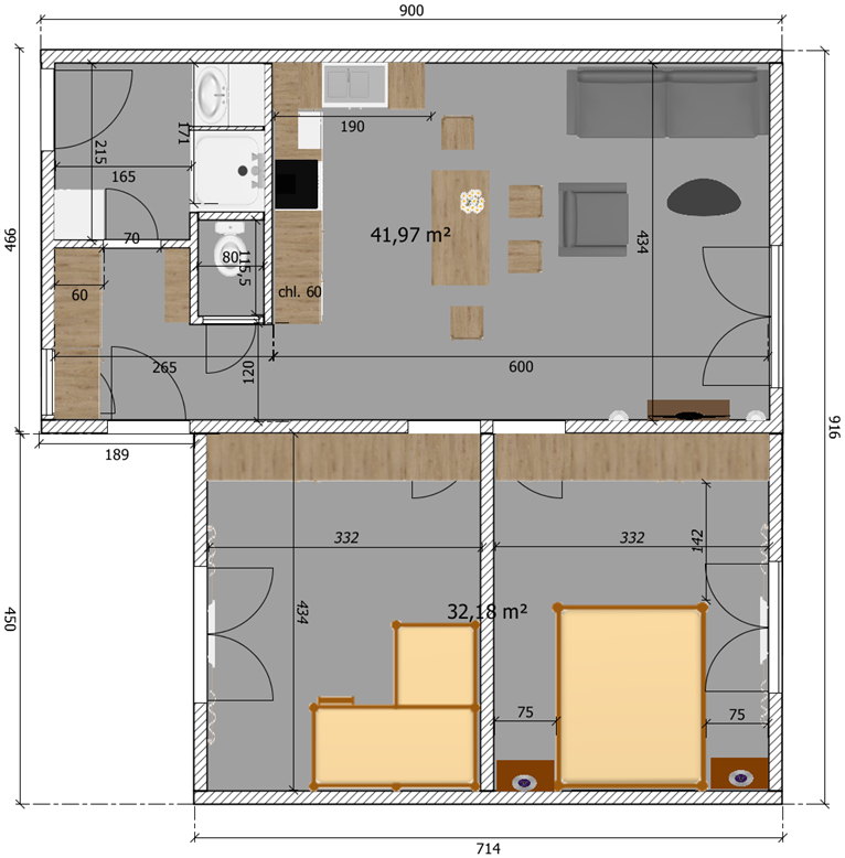
110 -135m2
Naša najväčšia stavebnica má výmeru 110 - 135m2. Vzhľadom na svoju plochu je vhodná skôr na rovinatý pozemok alebo do miernejších svahov. V prípade strmších svahov je nutné rátať s finančne náročnejšími terénnymi úpravami. Táto situácia vzniká pri domoch s väčšou zastavanou plochou. Vyrába sa už v sérii ako štvorizbová. Konštrukcia a rýchlosť výstavby je o niečo dlhšia ako pri strednej - 74m2 variante. Líši sa dispozične a aj dizajnom fasády a strechy. Strecha domu presahuje o 60cm po celom obvode a nesiaha až k zemi, ako pri dvoch predošlých variantách. Umožňuje to osadenie viacerých okien po celom obvode domu. Vchod do domu je situovaný z prednej strany, má väčšiu vstupnú chodbu. Dom má 2x kúpelňu aj WC. V jednej je možné osadiť sprchovací kút a v druhej vaňu až do šírky 170cm. Stavebnica má voliteľnú možnosť technickej miestnosti prístupnej zo vstupnej chodby alebo šatníka prístupného z manželskej spálne. Dom disponuje aj širokými dvojkrídlovými dverami s výstupom na terasu a väčšími vchodovými dverami s bočným svetlíkom.

